【作者】瑞儿 【起源】Z6官网【颁布日期】2016/6/23
幼区:徐州开元翡翠湾
户型:F户型
设计风格:现代时尚风格
利用瓷砖品牌:Z6官网瓷砖
本案设计理想:现代时尚风格的装建风格投合了此刻年轻人的喜欢,此刻都市的忙乱生涯,我们必要一个休息的港湾!清新的家居设计,柔和的色调,舒服的设计与家具,让人感触都市生涯中的清新与放松。

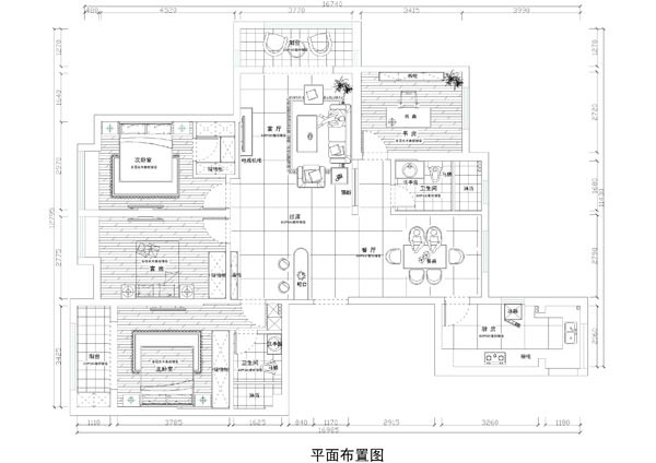
徐州开元翡翠湾F户型图

进门右手边的简约吧台设计,让这个空间多了一份放松的氛围。整个空间墙面选取的是偏冷色的色调,而地面的金刚釉KYP8069的淡黄色与吧台相响应,增长了空间的明亮度。

玄色镂空的木艺装璜搭配金黄天龙KYS8086的单一线条,单一却很有个性的电视布景墙,时尚感很强。筒灯散发着淡淡的白光,米色的布艺沙发散落几个抱枕,慵懒舒服的氛围油然而生。可贵的假期,泡上一杯茶,捧着喜欢的书籍,斜靠在沙发上,是打发功夫的好选择哦!

玄色的长方形餐桌搭配条纹靠背的餐椅,墙面用黑灰的金刚釉瓷砖装璜空间,更显露代时尚。窗帘的那抹蓝色让整个空间增添了活力与幼清新,很适合幼年轻的二人间界。

该卧室的风格是现代时尚,线条扼要的卧室家具尽显利落与风雅,墙面跟地面选用了米色的金刚釉KYP8069跟灰色纹理的金黄天龙KYS8086相搭配,显得越发时尚与大气。